• Home
    • Home
  • Services
  • Pages
    • Why Choose Us
    • Contact us
  • Portfolio
    • Column One
    • Column Two
    • Column Four
    • Column Three
  • Blog
    • News
  • Slider
    • Column One
    • Column Two
    • Column Three
      • Property Clip Slider
      • Zoom Slider
    • Column Four
Architectural Practice
  • 0800 021 0232
  • info@happi-nest.co.uk
Call our experts: 0800 021 0232
Happinest logo
  • Home
  • Services
      • the exterior of a property after building extension

        Extensions

      • Garage Conversion Plans

      • loft conversion underway

        Loft Conversion Plans

      • new builds

        New Build Plans

      • newly done barn conversion

        Barn Conversion Plans

      • row of physical stores on high street

        Change of Use Planning Application

      • new builds via 3D visualisation

        3D Architectural Rendering

      • building extension underway

        Permitted development

      • architectural drawing plan

        Building regulation plans

      • building extensions plans

        Structural Calculations

      • miniature mould of building contractors working on a new build on architectural drawing plans - project finance

        Project Finance

    • House Extension Plans
    • Garage Conversion Plans
    • New Build Plans
    • Barn Conversion Plans
    • Change of Use Planning Application
    • 3D Architectural Rendering
    • Permitted development
    • Building Regulation Plans
    • Structural calculations
  • Projects
      • the exterior of a property after building extension

        Extension Plans

      • loft conversion underway

        Loft, Garden and Garage Conversions

      • new builds

        New builds

      • newly done barn conversion

        Barn conversions and listed buildings

      • row of physical stores on high street

        Commercial

      • new builds via 3D visualisation

        3D Visualisation

  • Why Choose Us
  • Areas we cover
  • News
  • Contact us
happinest logo
  • Home
  • Services
      • the exterior of a property after building extension

        Extensions

      • Garage Conversion Plans

      • loft conversion underway

        Loft Conversion Plans

      • new builds

        New Build Plans

      • newly done barn conversion

        Barn Conversion Plans

      • row of physical stores on high street

        Change of Use Planning Application

      • new builds via 3D visualisation

        3D Architectural Rendering

      • building extension underway

        Permitted development

      • architectural drawing plan

        Building regulation plans

      • building extensions plans

        Structural Calculations

      • miniature mould of building contractors working on a new build on architectural drawing plans - project finance

        Project Finance

    • House Extension Plans
    • Garage Conversion Plans
    • New Build Plans
    • Barn Conversion Plans
    • Change of Use Planning Application
    • 3D Architectural Rendering
    • Permitted development
    • Building Regulation Plans
    • Structural calculations
  • Projects
      • the exterior of a property after building extension

        Extension Plans

      • loft conversion underway

        Loft, Garden and Garage Conversions

      • new builds

        New builds

      • newly done barn conversion

        Barn conversions and listed buildings

      • row of physical stores on high street

        Commercial

      • new builds via 3D visualisation

        3D Visualisation

  • Why Choose Us
  • Areas we cover
  • News
  • Contact us
  • 0800 021 0232
  • info@happi-nest.co.uk
Book a free home visit
Call our experts: 0800 021 0232
Happinest logo
  • Home
  • Services
      • the exterior of a property after building extension

        Extensions

      • Garage Conversion Plans

      • loft conversion underway

        Loft Conversion Plans

      • new builds

        New Build Plans

      • newly done barn conversion

        Barn Conversion Plans

      • row of physical stores on high street

        Change of Use Planning Application

      • new builds via 3D visualisation

        3D Architectural Rendering

      • building extension underway

        Permitted development

      • architectural drawing plan

        Building regulation plans

      • building extensions plans

        Structural Calculations

      • miniature mould of building contractors working on a new build on architectural drawing plans - project finance

        Project Finance

    • House Extension Plans
    • Garage Conversion Plans
    • New Build Plans
    • Barn Conversion Plans
    • Change of Use Planning Application
    • 3D Architectural Rendering
    • Permitted development
    • Building Regulation Plans
    • Structural calculations
  • Projects
      • the exterior of a property after building extension

        Extension Plans

      • loft conversion underway

        Loft, Garden and Garage Conversions

      • new builds

        New builds

      • newly done barn conversion

        Barn conversions and listed buildings

      • row of physical stores on high street

        Commercial

      • new builds via 3D visualisation

        3D Visualisation

  • Why Choose Us
  • Areas we cover
  • News
  • Contact us

Loft Conversion Project Gallery

Loft Conversions Example 1

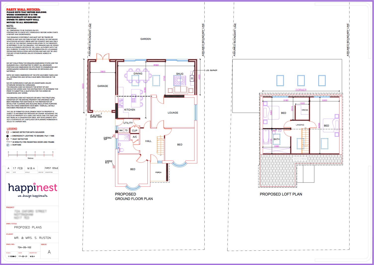
72a Oxford Street Kirkby in Ashfield




Loft Conversions Example 2

Tollerton



Happinest logo
Imagine, as a homeowner, a local, easy to use, comprehensive planning service that is looking after your interests! That brings you happinest!
Architects in Daventry 4
Local Enterprise Awards 2022 - Design Innovation Award 2022 Winner (happinest)
Local Enterprise Awards 2022 - Best Emerging Architectural Practice 2022 Winner (happinest)
Corporate Livewire Global Awards 2022 -Architectural Practice of the Year 2022/2023 Winner (happinest)
Build Award Logo
Local Enterprise 2023 Award Logo
Happinest-all-logos-master
Happinest Construction-Engineering-Awards Blue
Local Enterprise Awards 2022 - Design Innovation Award 2022 Winner (happinest)
Local Enterprise Awards 2022 - Best Emerging Architectural Practice 2022 Winner (happinest)
Happinest Construction-Engineering-Awards Blue
Corporate Livewire Global Awards 2022 -Architectural Practice of the Year 2022/2023 Winner (happinest)
Local Enterprise 2023 Award Logo
Build Award Logo
Happinest-all-logos-master
LABC Registered Partner Authority Scheme
Quick Links
  • Home
  • Services
    • House Extension Plans
    • Garage Conversion Plans
    • New Build Plans
    • Barn Conversion Plans
    • Change of Use Planning Application
    • 3D Architectural Rendering
    • Permitted development
    • Building Regulation Plans
    • Structural calculations
  • Projects
  • Why Choose Us
  • Areas we cover
  • News
  • Contact us
Latest News

Recent Posts

  • Garage conversion | Your Challenges, Our Solutions
    Garage conversion | Your Challenges, Our Solutions
    September 10, 2024
  • Unlock Your Home's Potential with Happinest Loft Conversions
    Unlock Your Home's Potential with Happinest Loft Conversions
    June 5, 2023
  • Everything you should consider for a kitchen extension
    Everything you should consider for a kitchen extension
    April 25, 2023

Contact Us

  • 0800 021 0232
  • info@happi-nest.co.uk
  • Happinest East Midlands HQ
    Unit B3 Gelders Hall Road,
    Shepshed,
    LE12 9NH
Facebook-square Pinterest-square Instagram Linkedin
  • Privacy Policy
  • Terms & Conditions
  • Sitemap
Copyright 2023 happinest. All rights reserved.
Contact Us

    Book a FREE home visit
    with your local expert